Casa indipendente in vendita

Picinisco, Borgata Remune - Remune
€ 169.000
6 locali 6 locali
160 Mq 160 Mq
2 bagni 2 bagni

Casa indipendente in vendita

Picinisco, Borgata Remune - Remune

Descrizione annuncio

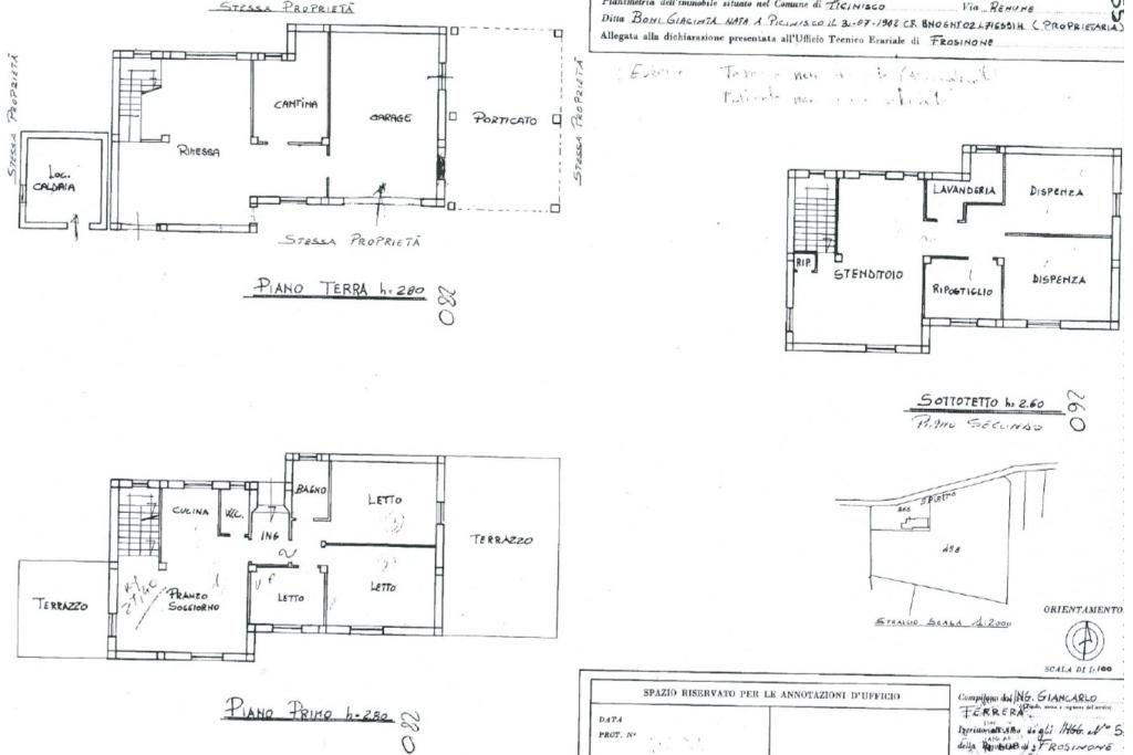
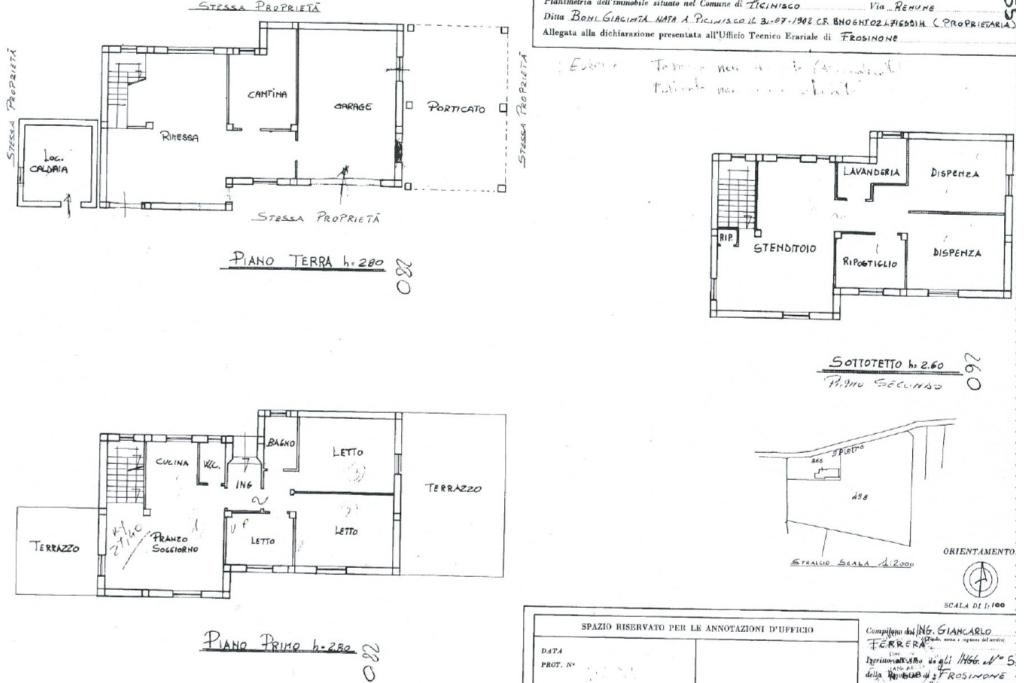
Picinisco (FR), Borgata Remune, a poca distanza dal centro del paese, proponiamo in vendita fabbricato indipendente di circa 160 mq. disposto su più livelli e attualmente in corso di costruzione, con ampio terreno pertinenziale di circa 8.878 mq.

L’immobile offre ampie possibilità di personalizzazione e si presta a molteplici utilizzi: ideale come abitazione unifamiliare di ampie dimensioni oppure divisibile in due o tre unità abitative indipendenti;

attualmente la disposizione interna prevede al piano terra una cantina, rimessa, locale caldaia, garage e porticato; piano primo ingresso, cucina e soggiorno con accesso su terrazzo panoramico, due bagni e tre camere da letto con ulteriore terrazzo; piano secondo (sottotetto) vano lavanderia, ripostiglio, stenditoio e due stanze adibite a dispensa.

Soluzione ideale per chi cerca tranquillità e ampi spazi. Ottima esposizione solare.

Mostra tutto

Nelle vicinanze

Farmacia Farmacia
Pharmacie Principale
930 m
Bar Bar
Bar
960 m
Mostra tutto

Caratteristiche

Rif.:
61140156
Piano:
Su più livelli di 3
Totale piani:
3
Box:
1
Posti auto:
8
Terrazzi:
2
Mostra tutto
Prezzo Prezzo
€ 169.000
Rata mutuo Rata mutuo
€ 797 / mese
Spese annue Spese annue
€ 0
Proponi il tuo prezzoProponi il tuo prezzo

Classe Energetica

G
G
G
G
G
G
G
G
G
EP globale non rinnovabile:
155.00 kW h/m² anno
EP globale rinnovabile:
155.00 kW h/m² anno
EP invernale del fabbricato:
EP estiva del fabbricato:
Anno di costruzione:
1990
Riscaldamento:
Assente

Ti interessa visionare l'immobile?

Fissa un appuntamento  Fissa un appuntamento

Richiedi informazioni

Clicca su Leggi per aprire l'informativa
* Questi campi sono obbligatori

Calcola il tuo mutuo

Semplice e senza impegno
Anticipo

( % )
Mutuo

( % )

pochi semplici passi

inserisci i tuoi dati
Questionario completato
Grazie per aver richiesto un appuntamento senza impegno con un nostro Consulente del Credito e Assicurativo.

Hai inserito correttamente tutti i dati necessari e a breve riceverai una e-mail con un link da convalidare per inviare i tuoi dati.
Affiliato
Studio Munazio Planco Srl
Corso Munazio Planco, 104/112 03042 Atina (FR)

Il nostro staff


  • Roberto Valente
    Affiliato

  • Danilo De Luca
    Collaboratore

  • Saira Toski
    Coordinatrice
Corso Munazio Planco, 104/112 03042 Atina (FR)
Zona: Atina-Gallinaro
Mostra su mappa
Orari: Dal lunedì al sabato ore 09:00 / 13:00 - 15:30 / 19:30 Sabato aperti la mattina ore 09:00 / 13:00
Affiliato
Studio Munazio Planco Srl
Corso Munazio Planco, 104/112 03042 Atina (FR)

2026 Tecnocasa Franchising S.p.A. - P. IVA 08365160152 - Via Monte Bianco 60/A 20089 Rozzano (MI). Ogni agenzia ha un proprio titolare ed è autonoma. Privacy policy | Policy utilizzo | Cookie policy