Casa indipendente in vendita

Atina, Via Caio Ponzio - Atina Inferiore
€ 150.000
20 locali 20 locali
705 Mq 705 Mq
4 bagni 4 bagni

Casa indipendente in vendita

Atina, Via Caio Ponzio - Atina Inferiore

Descrizione annuncio

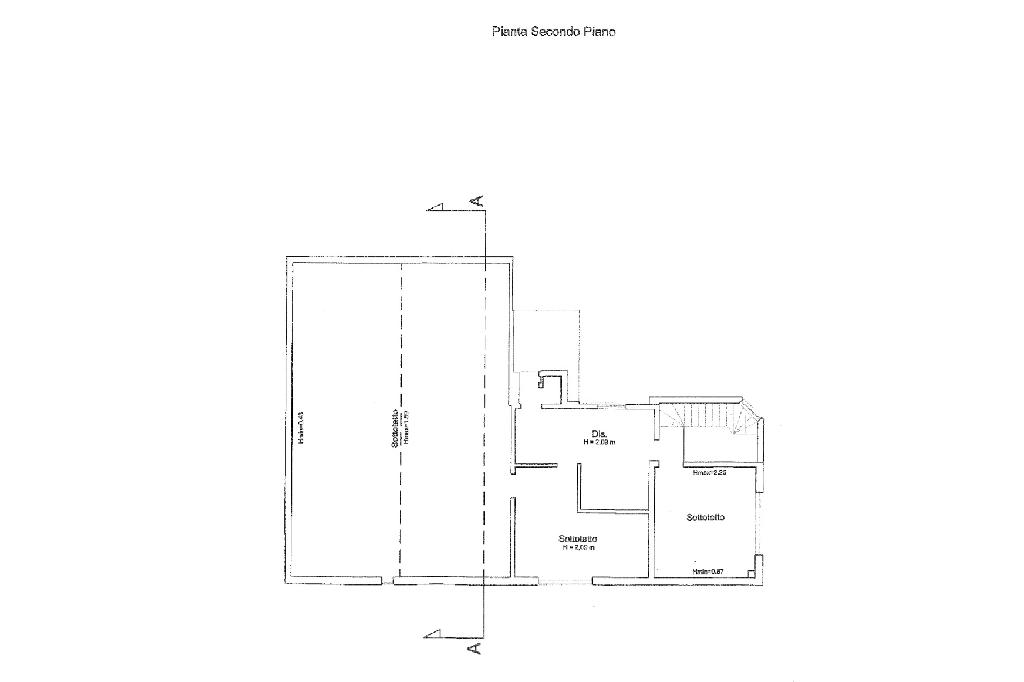
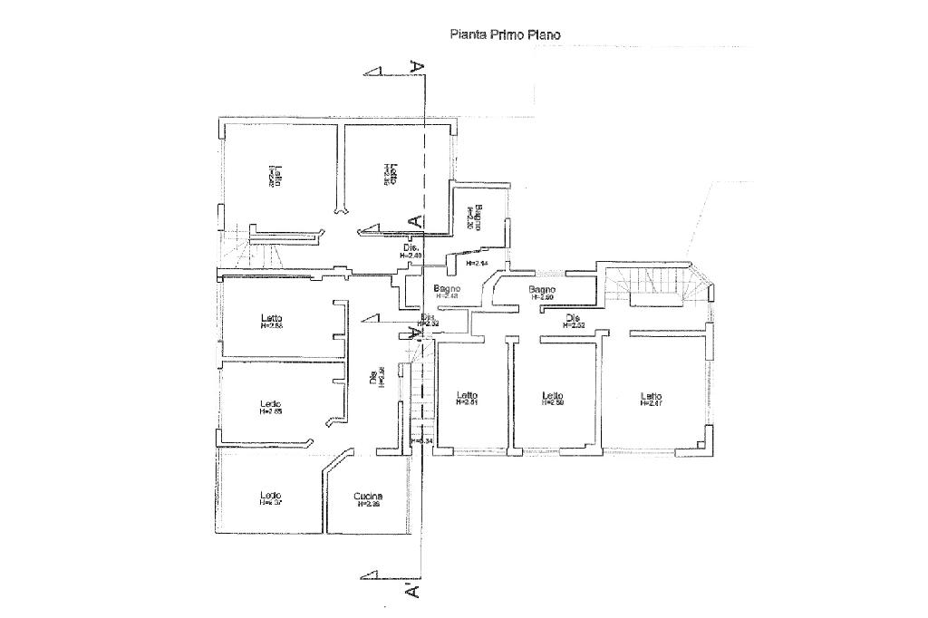
Atina Inf. Via Caio Ponzio e Via Parigi, in posizione centralissima, con una ubicazione di interesse residenziale e commerciale, proponiamo in vendita un fabbricato su triplice elevazione, su un area destinata a giardino della superficie complessiva tra coperto e scoperto di circa 1000 mq.

Il fabbricato, con destinazione residenziale, ha una superficie totale di circa 705 mq. e un volume complessivo di circa 3750 mc, rappresentando una straordinaria opportunità per interventi di trasformazione edilizia. Grazie alla sua ampia cubatura, è possibile procedere con una ristrutturazione o anche con una demolizione e ricostruzione per realizzare un edificio plurifamiliare con unità abitative dotate di giardino esclusivo, dispone inoltre di quattro garage.

La notevole cubatura e la sua favorevole posizione con doppio ingresso da Via Caio Ponzio e Via Parigi, rende questa proprietà particolarmente versatile, ideale per la creazione di ville indipendenti, ognuna con giardino privato oppure un fabbricato di circa 10 unità abitative;

un'opportunità interessante per chi cerca un investimento con grande potenziale di trasformazione, ma anche per famiglie che desiderano un'ampia residenza, ben collegata e adiacente a tutti i servizi.

Mostra tutto

Nelle vicinanze

Ricariche auto elettriche Ricariche auto elettriche
Atina Volsci | EnelX
270 m
Atina Lione | EnelX
440 m
Farmacia Farmacia
Farmacia del Corso
150 m
Ospedali Ospedali
Ospedali
700 m
Supermercati Supermercati
Conad
310 m
Punto Fresco
400 m
Leone di Porto - Ponte Melfa
540 m
EuroSpin
1,3 Km
Fallena
1,5 Km
Negozi Negozi
Chantelle
100 m
Fiori d'Arancio
100 m
Glamour abbigliamento
120 m
L'Antico Forno
170 m
Margherita Conad
1,8 Km
Bar Bar
Bar Conca d'oro
140 m
Bar Aurora
140 m
Bar caffeteria Bruni
220 m
Bar
470 m
Ristoranti Ristoranti
Le Cannardizie
1,9 Km
Farina Madre
1,9 Km
La Buka
1,9 Km
Mostra tutto

Caratteristiche

Rif.:
61110529
Piano:
3 di 3 (Piano su più livelli)
Box:
4
Posti auto:
4
Camere da letto:
10
Arredamento:
Assente
Mostra tutto
Prezzo Prezzo
€ 150.000
Rata mutuo Rata mutuo
€ 713 / mese
Spese annue Spese annue
€ 0
Proponi il tuo prezzoProponi il tuo prezzo

Classe Energetica

G
G
G
G
G
G
G
G
G
EP globale non rinnovabile:
155.00 kW h/m² anno
EP globale rinnovabile:
155.00 kW h/m² anno
EP invernale del fabbricato:
EP estiva del fabbricato:
Anno di costruzione:
1962
Riscaldamento:
Assente

Ti interessa visionare l'immobile?

Fissa un appuntamento  Fissa un appuntamento

Richiedi informazioni

Clicca su Leggi per aprire l'informativa
* Questi campi sono obbligatori

Calcola il tuo mutuo

Semplice e senza impegno
Anticipo

( % )
Mutuo

( % )

pochi semplici passi

inserisci i tuoi dati
Questionario completato
Grazie per aver richiesto un appuntamento senza impegno con un nostro Consulente del Credito e Assicurativo.

Hai inserito correttamente tutti i dati necessari e a breve riceverai una e-mail con un link da convalidare per inviare i tuoi dati.
Affiliato
Studio Munazio Planco Srl
Corso Munazio Planco, 104/112 03042 Atina (FR)

Il nostro staff


  • Roberto Valente
    Affiliato

  • Danilo De Luca
    Collaboratore

  • Saira Toski
    Coordinatrice
Corso Munazio Planco, 104/112 03042 Atina (FR)
Zona: Atina-Gallinaro
Mostra su mappa
Orari: Dal lunedì al sabato ore 09:00 / 13:00 - 15:30 / 19:30 Sabato aperti la mattina ore 09:00 / 13:00
Affiliato
Studio Munazio Planco Srl
Corso Munazio Planco, 104/112 03042 Atina (FR)

2026 Tecnocasa Franchising S.p.A. - P. IVA 08365160152 - Via Monte Bianco 60/A 20089 Rozzano (MI). Ogni agenzia ha un proprio titolare ed è autonoma. Privacy policy | Policy utilizzo | Cookie policy